
Водостічні жолоби для сталевих конструкцій є важливим компонентом дренажної системи даху будівлі. Їхня основна функція — збирати дощову воду з даху, направляти її у вертикальні труби, а потім скидати у зовнішню дренажну систему, запобігаючи прямій ерозії стін або намоченню фундаменту. Конструкція та встановлення продукту Liweiyuan характеризуються високою міцністю та малою вагою, що забезпечує плавний дренаж та виняткову довговічність.
Водостічні жолоби для сталевих конструкцій є важливим компонентом дренажної системи даху будівлі. Їхня основна функція — збирати дощову воду з даху, направляти її у вертикальні труби, а потім скидати у зовнішню дренажну систему, запобігаючи прямій ерозії стін або намоченню фундаменту. Конструкція та встановлення продукту Liweiyuan характеризуються високою міцністю та малою вагою, що забезпечує плавний дренаж та виняткову довговічність.
Водостічна труба Liweiyuan Steel Structure Gutter виготовлена з корозійностійких і ударостійких матеріалів.
Наш продукт гаряче оцинкований, що забезпечує чудову стійкість до корозії, низьку вартість і тривалий термін служби. Доступний у товщині 1,5-2,5 мм, він підходить для більшості застосувань.
Виготовлений з нержавіючої сталі, цей продукт стійкий до корозії та особливо підходить для прибережних або вологих середовищ. Доступний у товщині 1,0-2,0 мм, він пропонує вищу ціну, але тривалий термін служби.
Наші сталеві вироби з кольоровим покриттям створені на основі оцинкованої сталі, покритої атмосферостійким покриттям, таким як поліестер або фторвуглець, для стійкості до корозії та декоративного ефекту. Доступні в товщині 1,2-2,0 мм, вони підходять для будівель, які потребують високого рівня естетичної привабливості.
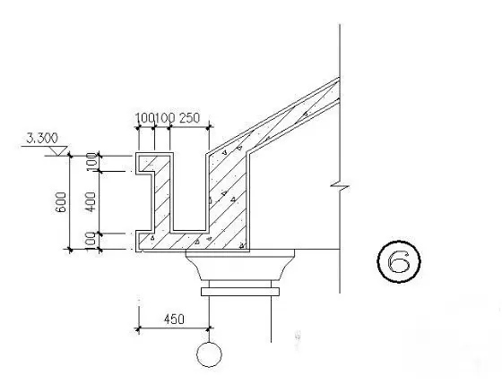
Конструктивну форму жолоба сталевої конструкції необхідно адаптувати до конструкції схилу даху та карнизу. Поширені типи включають U-подібні та V-подібні. Процес установки виглядає наступним чином:
Наші водосточні жолоби для сталевих конструкцій використовують кутові сталеві кронштейни для кріплення до карнизних балок або прогонів сталевих конструкцій. Відстань між кронштейнами становить 600-1000 мм, щоб забезпечити рівномірний розподіл напруги по ринві.
Готові жолоби мають попередні розміри та з’єднуються на місці за допомогою з’єднувачів або зварювання. Герметик необхідний у місці з’єднання жолоба з настилом даху.
Ми можемо встановити огородження над настилом даху. Нижній кінець ринви слід розташувати нижче настилу даху і закрити герметиком. У нижній частині ринви слід передбачити дренажні отвори, в першу чергу для підключення до стояків дощової води.
Наш процес виробництва водостоків із сталевих конструкцій включає різання відповідно до розмірів креслення, згинання, фарбування, перевірку готової продукції, пакування та транспортування. Жолоби зі сталевих конструкцій Liweiyuan розроблені та встановлені для забезпечення стійкості до корозії, плавного дренажу та довговічності, забезпечуючи ефективний дренаж.